GALLERY
PROPERTY DETAIL
Key Details
Property Type Single Family Home
Sub Type Single Family Residence
Listing Status Pending
Purchase Type For Sale
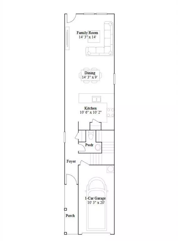
Square Footage 1, 555 sqft
Price per Sqft $158
MLS Listing ID OKC1208084
Style Other
Bedrooms 4
Full Baths 2
Half Baths 1
Construction Status Brick & Frame
HOA Fees $350
Year Built 2026
Lot Size 3,001 Sqft
Acres 0.0689
Property Sub-Type Single Family Residence
Location
State OK
County Cleveland
Rooms
Dining Room 1
Building
Lot Description Interior Lot
Foundation Post Tension
Builder Name Lennar
Architectural Style Other
Level or Stories Two
Structure Type Brick & Frame
Construction Status Brick & Frame
Interior
Heating Central Gas
Cooling Central Elec
Fireplaces Type None
Fireplace Y
Exterior
Exterior Feature None
Garage Spaces 1.0
Roof Type Architecural Shingle
Private Pool false
Schools
Elementary Schools Kennedy Es
Middle Schools Irving Ms
High Schools Norman Hs
School District Norman
Others
HOA Fee Include Common Area Maintenance
SIMILAR HOMES FOR SALE
Check for similar Single Family Homes at price around $246,999 in Norman,OK
CONTACT












