GALLERY
PROPERTY DETAIL
Key Details
Sold Price $275,250
Property Type Single Family Home
Sub Type Single Family Residence
Listing Status Sold
Purchase Type For Sale
Square Footage 2, 239 sqft
Price per Sqft $122
MLS Listing ID OKC1196499
Sold Date 02/27/26
Style Other
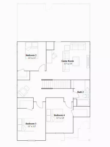
Bedrooms 4
Full Baths 2
Construction Status Brick & Frame
HOA Fees $330
Year Built 2025
Lot Size 4,922 Sqft
Acres 0.113
Property Sub-Type Single Family Residence
Location
State OK
County Logan
Rooms
Dining Room 1
Building
Lot Description Interior Lot
Foundation Post Tension
Builder Name Lennar
Architectural Style Other
Level or Stories Two
Structure Type Brick & Frame
Construction Status Brick & Frame
Interior
Heating Central Gas
Cooling Central Elec
Fireplaces Type None
Fireplace Y
Exterior
Exterior Feature None
Garage Spaces 2.0
Roof Type Architecural Shingle
Private Pool false
Schools
Elementary Schools Central Es, Guthrie Upper Es
Middle Schools Guthrie Jhs
High Schools Guthrie Hs
School District Guthrie
Others
HOA Fee Include Common Area Maintenance
SIMILAR HOMES FOR SALE
Check for similar Single Family Homes at price around $275,250 in Guthrie,OK
CONTACT







